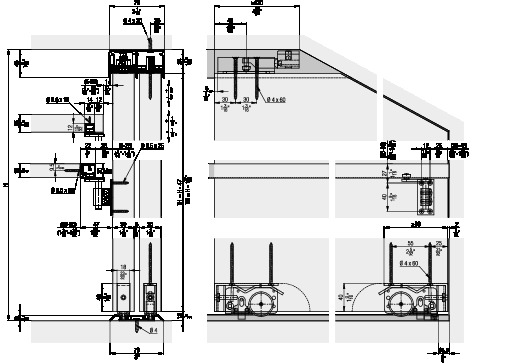
HAWA DIVIDO 80 H DS2 Hardware system for wooden sliding doors and room dividers with sloping ceilings and 1-point upper + 2-point side fastening
HAWA DIVIDO 80 H DS3/DS4 hardware system for sliding partitions with 1-point upper fastening and 2-point side fastening, for sloping ceiling setting
Manufacturer - HAWA (Switzerland)
HAWA DIVIDO is a versatile interior parting system for sliding doors that stands out with its neat shape, minimal installation height and appealing fittings. The system offers an almost unlimited array of options for layout and design, where rooms are adaptable and provide means for privacy if necessary. It is therefore an ideal solution for public establishments, retirement homes, hotels and homes with multiple generations or families living together. The DS versions are suitable for settings with a sloping ceiling. The reliable technology featuring precise rollers and high-end aluminium profiles enables smooth sliding for wooden door leaves weighing up to 80 kg. The system allows for the creation of large facades consisting of several narrow sliding parts that can be stacked into a neat, compact block. For additional comfort of use, the system can be supplemented with a Soft Close feature for a quiet and gentle door closing.
Technical data
- hardware system for wooden sliding doors and partitions
- suitable for sloping ceiling settings with 1-point upper fastening and 2-point side fastening for doors where upper fastening is not applicable
- min. length of upper straight edge for the sloping door leaf: 150 mm
- angle of the sloping edge: 30°-60°
- installation on floor and ceiling with bottom running gear
- guide rail installation:
- surface installation - screw-on or adhesive
- recess installation
- running track and guide rail with one or two tracks
- max weight of single door leaf: 80 kg
- leaf thickness: 28-30 mm
- max leaf height: 2400 mm
- min. straight height of DS4 sloping door leaf without upper fastening: 900 mm
- max. sloping height of DS4 sloping door leaf without upper fastening: 900 mm
- max leaf width: 2000 mm
- max passage size: 6000 mm
- height adjustment: +/- 3 mm
- track length:
- custom fit
- standard length 6000 mm
- finish material for visible parts: aluminium anodised
- corresponds to the highest grade in use and durability according to EN 1527 (grade 6 = 100 000 test cycles)
- additional products: Soft Close set
HAWA DIVIDO 80 DS3/DS4 track types


TECHNICAL DOCUMENTS
- Products
- Price
- In Stock
- Quantity
-
HAWA DIVIDO 80 H basic set for 1 wooden doorCode: SB00009809Art. Nr.: 042.3026.075Price:From €307.87In Stock: 0 pc. -
042.3089.990 running track flush mounted, aluminium anodized, cut to size (price per 1 m)Code: SB00024594Art. Nr.: 042.3089.990Price:From €17.28In Stock: 0 m -
042.3040.990 running/guiding track surface mounted, aluminium anodized, cut to size (price per 1 m)Code: SB00024600Art. Nr.: 042.3040.990Price:From €22.07In Stock: 0 m -
042.3080.990 running track for glueing, aluminium anodized, cut to size (price per 1 m)Code: SB00024601Art. Nr.: 042.3080.990Price:From €29.08In Stock: 0 m -
042.3039.990 dual mounting profile with track 042.3037, aluminium anodized, cut to size (price per 1 m)Code: SB00025944Art. Nr.: 042.3039.990Price:From €68.67In Stock: 0 m -
042.3041.990 running/guiding track surface mounted, pre-drilled, aluminium anodized, cut to size (price par 1 m)Code: SB00009815Art. Nr.: 042.3041.990Price:From €65.06In Stock: 0 m -
042.3081.990 Dual running track surface mounted, pre-drilled, aluminium anodized, cut to size (price per 1 m)Code: SB00024603Art. Nr.: 042.3081.990Price:From €75.56In Stock: 0 m -
042.3049.990 single guide track, aluminium anodized, cut to size (price per 1 m)Code: SB00009817Art. Nr.: 042.3049.990Price:From €65.06In Stock: 0 m -
042.3011.990 dual guide track, aluminium anodized, cut to size (price per 1 m)Code: SB00024607Art. Nr.: 042.3011.990Price:From €88.80In Stock: 0 m -
DIVIDO 80 G DS3 Sloping ceiling fitting set for 1 wooden or alu-framed doorCode: SB00024613Art. Nr.: 042.3048.071Price:From €101.72In Stock: 0 pc. -
DIVIDO H DS3/DS4 Fixing set for running and guide trackCode: SB00024614Art. Nr.: 042.3065.071Price:From €35.04In Stock: 0 pc. -
DIVIDO H DS3/DS4 Single guide track B 25, to clip on, aluminium anodized, cut to size (price per 1 m)Code: SB00024617Art. Nr.: 040.3136.990Price:From €36.81In Stock: 0 m -
Guide track, aluminum, pre-drilled, cut to size (price per 1 m)Code: SB00024621Art. Nr.: 056.3079.990Price:From €14.86In Stock: 0 m
Additional products
- Products
- Price
- In Stock
- Quantity
-
042.3089.600 running track flush mounted, aluminium anodized, 6000 mmCode: SB00009825Art. Nr.: 042.3089.600Price:From €75.48In Stock: 0 pc. -
042.3040.600 running/guiding track surface mounted, aluminium anodized, 6000 mmCode: SB00024599Art. Nr.: 042.3040.600Price:From €16.79In Stock: 0 pc. -
042.3080.600 running track for glueing, aluminium anodized, 6000 mmCode: SB00009819Art. Nr.: 042.3080.600Price:From €129.81In Stock: 0 pc. -
042.3039.600 dual mounting track for 042.3037, aluminium anodized, 6000 mmCode: SB00024596Art. Nr.: 042.3039.600Price:From €180.18In Stock: 0 pc. -
042.3037.600 running/guiding track for 042.3039, aluminium anodized, 6000 mmCode: SB00024595Art. Nr.: 042.3037.600Price:From €62.97In Stock: 0 pc. -
042.3041.600 dual running/guiding track surface mounted, pre-drilled, aluminium anodized, 6000 mmCode: SB00009816Art. Nr.: 042.3041.600Price:From €288.75In Stock: 0 pc. -
042.3081.600 dual running track surface mounted, pre-drilled, aluminium anodized, 6000 mmCode: SB00024604Art. Nr.: 042.3081.600Price:From €336.14In Stock: 0 pc. -
042.3038.990 clip cover for 042.3039/042.3041/042.081/042.3082, aluminium anodized, cut to size (price per 1 m)Code: SB00009813Art. Nr.: 042.3038.990Price:From €21.97In Stock: 0 m -
042.3038.600 clip cover for 042.3039/042.3041/042.081/042.3082, aluminium anodized, 6000 mmCode: SB00009814Art. Nr.: 042.3038.600Price:From €95.17In Stock: 0 pc. -
042.3049.600 single guide track, aluminium anodized, 6000 mmCode: SB00009818Art. Nr.: 042.3049.600Price:From €288.75In Stock: 0 pc. -
042.3011.600 dual guide track, aluminium anodized, 6000 mmCode: SB00009808Art. Nr.: 042.3011.600Price:From €396.20In Stock: 0 pc. -
DIVIDO 80 intermediate stop for upper track, not compatible with Soft Close, plastic greyCode: SB00009810Art. Nr.: 042.3031.071Price:From €12.11In Stock: 0 pc. -
DIVIDO 80 track end piece for 042.3089, plastic grey, 2 pcsCode: SB00009826Art. Nr.: 042.3090.081Price:From €16.63In Stock: 0 pāris -
DIVIDO 80 Soft Close set for 1 door 10-60 kgCode: SB00024580Art. Nr.: 042.3103.072Price:From €164.35In Stock: 0 pc. -
DIVIDO 80 Soft Close set for 1 door 61-80 kgCode: SB00009829Art. Nr.: 042.3103.071Price:From €164.35In Stock: 0 pc. -
DIVIDO H DS3/DS4 Single guide track B 25, to clip on, aluminium anodized, 6000 mmCode: SB00024618Art. Nr.: 040.3136.600Price:From €162.73In Stock: 0 pc. -
Guide track, aluminum, pre-drilled, 6000 mmCode: SB00024619Art. Nr.: 056.3079.600Price:From €66.84In Stock: 0 pc.
| Manufacturer | Hawa |
|---|---|
| Series | DIVIDO |
| Track installation | Floor mounting recess |
| mode of operation | manual |
| material | aluminium anodised |
| leaf material | wood |
| Design | surface-mounted track |
| system type | straight sliding door system |
| purpose | for indoors |
| leaf maximum weight | 80 kg |
| leaf height | līdz 2400 mm |
| leaf width | līdz 2000 mm |






























































